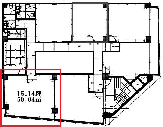
// 大阪 事務所・賃貸オフィス・SOHO大阪 5〜10人(10坪〜20坪)の貸事務所、賃貸オフィス一覧
5〜10人(10坪〜20坪)までの中規模オフィス!貸し事務所、賃貸オフィス物件を一覧で表示しています。賃料や坪数での絞り込みも可能!
大阪 5〜10人(10坪〜20坪)の貸事務所、賃貸オフィス一覧大阪 5〜10人(10坪〜20坪)までの中規模オフィス!貸し事務所、賃貸オフィス物件を一覧で表示しています。賃料や坪数での絞り込みも可能!
5〜10人(10坪〜20坪)までの中規模オフィス!貸し事務所、賃貸オフィス物件を一覧で表示しています。賃料や坪数での絞り込みも可能!
LINEで簡単ご相談!オフィス物件の
「貸したい」「売りたい」も無料査定!
LINEで気軽にご希望条件を送信!
物件探しを頼んで待つだけ簡単!
オフィス物件も居抜きが人気です!
退去・移転前にぜひ、ご相談ください!