士業関係にお勧め@西天満
大阪メトロ御堂筋線【淀屋橋駅】徒歩5分の好立地裁判所も近いので士業関係のオフィスが多いエリアで来客、顧客先へのアクセスも良好で梅田・本町への移動も◎1990年築鉄骨造8階建ワンフロア1戸の2階区画&n..
大阪 10〜15人(20坪〜30坪)の貸事務所、賃貸オフィス一覧大阪 10〜15人(20坪〜30坪)までのそこそこ広い!貸し事務所、賃貸オフィス物件を一覧で表示しています。賃料や坪数での絞り込みも可能!
10〜15人(20坪〜30坪)までのそこそこ広い!貸し事務所、賃貸オフィス物件を一覧で表示しています。賃料や坪数での絞り込みも可能!
大阪メトロ御堂筋線【淀屋橋駅】徒歩5分の好立地裁判所も近いので士業関係のオフィスが多いエリアで来客、顧客先へのアクセスも良好で梅田・本町への移動も◎1990年築鉄骨造8階建ワンフロア1戸の2階区画&n..
中央区谷町3丁目官公庁のオフィスや士業関係のオフィスの多いエリア谷町筋に面するアクセスのよいエリア 1974年築鉄骨鉄筋コンリート造9階建て地下1階レトロなビルですがエントランスや共用部はリ..
ビジネスとカルチャーが交差する大阪市中央区に位置する【南船場エリア】大阪メトロ御堂筋線【心斎橋駅】徒歩5分メインストリート御堂筋も近くとっても便利な立地。1992年築鉄骨造9階建ワンフロア1戸の独立性..
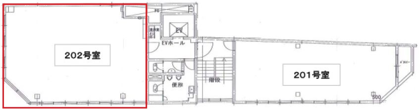
大阪のビジネスエリアの中心地【本町エリア】大阪メトロ御堂筋/中央線【本町駅】まで徒歩2分の立地梅田、難波、心斎橋、天王寺など主要ターミナルまで乗り換えなしでアクセスが可能。1985年築の鉄筋コンクリー..
大阪市中央区谷町3丁目大阪メトロ中央線/谷町線【谷町四丁目駅】徒歩1分の立地谷町筋に面していて車でのアクセスも〇周辺は官庁関連のオフィスが多く士業関係のオフィスも多いビジネスエリア1989年12月築鉄..
大阪メトロ谷町線京阪本線【天満橋駅】徒歩3分の便利な立地周辺には官公庁や金融機関、大手企業のオフィスもあり大阪市内中心部にありながら落ち着いた雰囲気のあるオフィス環境 1984年築鉄筋コンク..
LINEで簡単ご相談!オフィス物件の
「貸したい」「売りたい」も無料査定!
LINEで気軽にご希望条件を送信!
物件探しを頼んで待つだけ簡単!
オフィス物件も居抜きが人気です!
退去・移転前にぜひ、ご相談ください!