// 大阪 事務所・賃貸オフィス・SOHO大阪 10〜15人(20坪〜30坪)の貸事務所、賃貸オフィス一覧

10〜15人(20坪〜30坪)までのそこそこ広い!貸し事務所、賃貸オフィス物件を一覧で表示しています。賃料や坪数での絞り込みも可能!

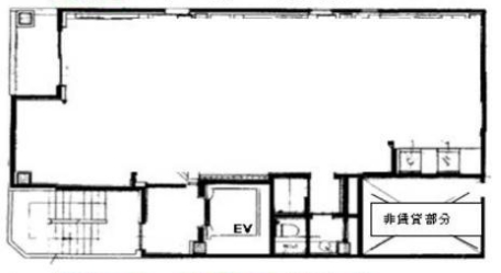
谷町筋沿いの駅徒歩1分のオフィスビル

16.5万万円 (共:33,000円)
25.96 (専:85.85㎡)
大阪市中央区谷町(1〜5丁目)3丁目 谷町四丁目駅 徒歩1分

大阪市中央区谷町3丁目大阪メトロ中央線/谷町線【谷町四丁目駅】徒歩1分の立地谷町筋に面していて車でのアクセスも〇周辺は官庁関連のオフィスが多く士業関係のオフィスも多いビジネスエリア1989年12月築鉄..

対象物件944
並び替え
 

エリアを選択

賃料

 

広さ

 

『10〜15人(20坪〜30坪)』事務所・賃貸オフィス物件一覧

貸し事務所を掲載順に表示しています。

気になる物件がある場合はボタンを押して、物件をストックする事が可能です!
本サイト上部の「お気に入りリスト」よりストックした物件がご確認頂けます!
また、物件の一括お問い合せもできますので、大変便利です!ぜひ、ご活用下さい!


スマホで簡単!大阪の店舗・テナント物件探し! 店舗物件を貸すのも売るのもまずは無料査定から!

// オフィス・事務所のお役立ち

Copyright 2024 WORKS-SPACE-COM. ALL Rights Reserved.
大阪の貸事務所・SOHO・オフィスサイト ページトップへ