// Âçºå »ö̳½ê¡¦ÄÂÂߥª¥Õ¥£¥¹¡¦SOHOÂçºå ¡Á5¿Í¡Ê10Äڰʲ¼¡Ë¤ÎÂß»ö̳½ê¡¢ÄÂÂߥª¥Õ¥£¥¹°ìÍ÷

¡Á5¿Í¡Ê10Äڰʲ¼¡Ë¤Þ¤Ç¤Î¥¹¥â¡¼¥ë¥ª¥Õ¥£¥¹¡ªÂߤ·»ö̳½ê¡¢ÄÂÂߥª¥Õ¥£¥¹Êª·ï¤ò°ìÍ÷¤Çɽ¼¨¤·¤Æ¤¤¤Þ¤¹¡£ÄÂÎÁ¤äÄÚ¿ô¤Ç¤Î¹Ê¤ê¹þ¤ß¤â²Äǽ¡ª

¥Ç¥¶¥¤¥Ê¡¼¥º¥ª¥Õ¥£¥¹¡÷ËÜÄ®

14.3ËüËü±ß ¡Ê¶¦¡§16,500±ß¡Ë
8.05ÄÚ ¡ÊÀì¡§26.64㎡¡Ë
Âçºå»ÔÃæ±û¶èËÜÄ®4ÃúÌÜ ¡¦ ËÜÄ®±Ø ÅÌÊâ4ʬ

Âçºå»ÔÃæ±û¶èËÜÄ®4ÃúÌÜÂçºå¥á¥È¥í»Í¤Ä¶¶Àþ/¸æÆ²¶ÚÀþ/Ãæ±ûÀþ¤¬¥¢¥¯¥»¥¹²Äǽ¤Ê¥Ó¥¸¥Í¥¹¥¨¥ê¥¢¤è¤ê¥ê¥Î¥Ù¡¼¥·¥ç¥ó¥ª¥Õ¥£¥¹¤Î¤´¾Ò²ð¡£1977ǯÃÛÅ´¹üÅ´¶Ú¥³¥ó¥¯¥ê¡¼¥È¤10³¬·ú¤ÆÃϲ¼1³¬¥»¥³¥à24»þ´Ö¥»¥­¥å¥ê¥Æ..

»Í¥Ä¶¶¶Ú¤¹¤°¤Î¥ê¥Î¥Ù¡¼¥·¥ç¥óŹÊÞ»ö̳½ê

19.8ËüËü±ß ¡Ê¶¦¡§22,000±ß¡Ë
9.99ÄÚ ¡ÊÀì¡§33.05㎡¡Ë
Âçºå»ÔÀ¾¶èËÌËÙ¹¾1ÃúÌÜ ¡¦ »Í¥Ä¶¶±Ø ÅÌÊâ1ʬ

Âçºå»ÔÀ¾¶èËÌËÙ¹¾1ÃúÌÜ Âçºå¥á¥È¥í»Í¤Ä¶¶Àþ»Í¥Ä¶¶±ØÅÌÊâ1ʬ»Í¥Ä¶¶¶Ú¤«¤éÆþ¤Ã¤Æ¤¹¤°¤ÎΩÃϤˤ¢¤ë1973ǯÃۤΥê¥Î¥Ù¡¼¥·¥ç¥ó¥Ó¥ë¤Î4³¬¤Î¶è²è 33.05­ÖÌó9.99ÄÚ¥ª¡¼¥È¥í¥Ã¥¯¤¢¤ê¡Ê6»þ¤«¤é2..

ËÌÉÍ¥¨¥ê¥¢SOHO¡¦Åе­²Äǽ

8.9ËüËü±ß ¡Ê¶¦¡§8,800±ß¡Ë
8.17ÄÚ ¡ÊÀì¡§27.03㎡¡Ë
Âçºå»ÔÃæ±û¶èÊ¿ÌîÄ®2ÃúÌÜ ¡¦ ËÌÉ걯 ÅÌÊâ3ʬ

Ãæ±û¶èÊ¿ÌîÄ®2ÃúÌÜËÌÉÍ¡¦Íä²°¶¶±ØÅÌÊ⥢¥¯¥»¥¹²Äǽ¤ÎΩÃÏ¡£Ê¿ÌîÄ®Ä̤ê¤ËÌ̤¹¤ë¥Ç¥¶¥¤¥Ê¡¼¥º¥Þ¥ó¥·¥ç¥ó¤ËÂàµîͽÄ꤬¤Ç¤Þ¤·¤¿¡£2006ǯŴ¶Ú¥³¥ó¥¯¥ê¡¼¥È¤10³¬·ú¤Æ ¥¨¥ó¥È¥é¥ó¥¹¤«¤éɺ¤¦¡¢¥Ç¥¶¥¤¥Ê¡¼..

Ê·°Ïµ¤¤Î¤¢¤ë¥ì¥È¥í¥Ó¥ëÊ罸½Ð¤Þ¤·¤¿

6.6ËüËü±ß ¡Ê¶¦¡§11,000±ß¡Ë
5.35ÄÚ ¡ÊÀì¡§17.69㎡¡Ë
Âçºå»ÔÀ¾¶è°¤ÇȺÂ1ÃúÌÜ ¡¦ ËÜÄ®±Ø ÅÌÊâ5ʬ

Âçºå¥á¥È¥í³Æ±èÀþ¤Ë¥¢¥¯¥»¥¹¤¬¤è¤¯Ê£¿ô±ØÍøÍѲÄǽ¤ÊΩÃϰ¤ÇȺ¤è¤ê¥ì¥È¥í¥Ó¥ë¡¢¾®µ¬Ì϶è²è¤¬Ê罸½Ð¤Þ¤·¤¿¡£ ¾¼ÏÂ37ÃÛ¤ÎÅ´¶Ú¥³¥ó¥¯¥ê¡¼¥È¡¦Å´¹ü¤4³¬·ú¤ÆËÜÄ®±Ø¡¦°¤ÇȺ±ء¦À¾Âç¶¶±Ø¤¬ÅÌÊâ·÷Æâ¤Î¥¢¥¯¥»..

¥ì¥È¥í¥ê¥Î¥Ù¡¼¥·¥ç¥ó¡¢¥¯¥ê¥¨¥¤¥Æ¥£¥Ö¤Ê¶õ´Ö

8.8ËüËü±ß ¡Ê¶¦¡§11,000±ß¡Ë
6.27ÄÚ ¡ÊÀì¡§20.74㎡¡Ë
Âçºå»ÔÃæ±û¶èÇîϫĮ1ÃúÌÜ ¡¦ ºæ¶ÚËÜÄ®±Ø ÅÌÊâ6ʬ

Âçºå»ÔÃæ±û¶èÇîϫĮ1ÃúÌÜ1977ǯÃۤΥì¥È¥í¥Ó¥ë2017ǯ¤Ë·úʪ¤ò¥ê¥Î¥Ù¡¼¥·¥ç¥ó¤Ç¥¯¥ê¥¨¥¤¥Æ¥£¥Ö¤Ê¶õ´Ö¤Ë¥ì¥ó¥¬¤È¥¢¡¼¥ÁÁ뤬°õ¾ÝŪ¤ÊÊ·°Ïµ¤¤ÎÎɤ¤³°´Ñ 1F¤â¥¬¥é¥¹Ä¥¤ê¤Ç¤ª¤·¤ã¤ì¤ÊÊ·°Ïµ¤&nbs..

Á´ÌÌÁë¤ÎÌÀ¤ë¤¤»ö̳½ê

6ËüËü±ß ¡Ê¶¦¡§16,500±ß¡Ë
7.07ÄÚ ¡ÊÀì¡§23.4㎡¡Ë
Âçºå»ÔÀ¾¶è¹¾¸ÍËÙ1ÃúÌÜ ¡¦ Èî¸å¶¶±Ø ÅÌÊâ5ʬ

Âçºå»ÔÀ¾¶è¹¾¸ÍËÙ1ÃúÌܸòÄ̤ÎÊØ¤ÎÎɤ¤ÅÚº´ËÙÄ̤ê¤È¤Ê¤Ë¤ï¶Ú¤Ë¶á¤¯Âçºå¥á¥È¥íÈî¸å¶¶±Ø¤Þ¤Ç¤âÅÌÊâ5ʬ¤ÎΩÃÏ 1988ǯ9·îÃÛÅ´¹ü¤10³¬·ú¤ÆÁ´ÌÌ¥µ¥Ã¥·Áë¤ÇÆî¸þ¤­¤Î¤¿¤á¼¼Æâ¤ÏÌÀ¤ë¤¯¡¢²òÊü´¶¤â¤´¤¶¤¤¤Þ..

¿·µ¬³«¶È¤Ë¤ª¤¹¤¹¤á¡÷ËÜÄ®

6.2ËüËü±ß ¡Ê¶¦¡§15,400±ß¡Ë
6.45ÄÚ ¡ÊÀì¡§21.33㎡¡Ë
Âçºå»ÔÀ¾¶èΩÇäËÙ1ÃúÌÜ ¡¦ ËÜÄ®±Ø ÅÌÊâ4ʬ

Âçºå»ÔÀ¾¶èΩÇäËÙ1ÃúÌÜÂçºå¥á¥È¥í»Í¤Ä¶¶Àþ¡ÚËÜÄ®±Ø¡ÛÅÌÊâ4ʬÂçºå¥Ó¥¸¥Í¥¹¥¨¥ê¥¢¤Ë¤â¥¢¥¯¥»¥¹¤ÎÎɤ¤Î©ÃϤǿ·µ¬³«¶È¤Ë¤â¤ª¤¹¤¹¤á¤Ê°ì¼¼¤Ç¤¹¡£Ìó21.33­ÖÌó6.45ÄÚ2Ì̺θ÷¤ÇÌÀ¤ë¤¤¼¼Æâ¡£¼¼Æâ¤Ë¸ÄÊÌ¥­¥Ã¥Á¥ó¡¢..

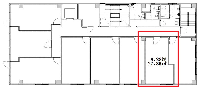
ËÜÄ®±ØÅÌÊâ3ʬ¡ª¿Íµ¤¥·¥ê¡¼¥º¥Ç¥¶¥¤¥ó¥ª¥Õ¥£¥¹

10.4ËüËü±ß ¡Ê¶¦¡§16,500±ß¡Ë
5.69ÄÚ ¡ÊÀì¡§18.84㎡¡Ë
Âçºå»ÔÃæ±û¶èËÜÄ®4ÃúÌÜ ¡¦ ËÜÄ®±Ø ÅÌÊâ3ʬ

ËÜÄ®±ØÅÌÊâ3ʬ¡¢ÅÔ¿´¤Ç³ð¤¨¤ë¥¹¥Þ¡¼¥È³«¶È ¡½ RE-022 502¹æ¼¼¤Î¤´¾Ò²ðÂçºå¤Î¥Ó¥¸¥Í¥¹Ãæ¿´ÃÏ¡¦ËÜÄ®¥¨¥ê¥¢¤Ë°ÌÃÖ¤¹¤ë¡ÖRE-022¡×502¹æ¼¼¤Î¤´¾Ò²ð¤Ç¤¹¡£»Í¤Ä¶¶Àþ¡ÖËÜÄ®¡×±Ø¤è¤êÅÌÊâ3ʬ¡¢Ãæ±ûÀþ¡Ö..

ÂоÝʪ·ï1310·ï
ʤÓÂØ¤¨
 

¥¨¥ê¥¢¤òÁªÂò

ÄÂÎÁ

¡Á
 

¹­¤µ

¡Á
 

¡Ø¡Á5¿Í¡Ê10Äڰʲ¼¡Ë¡Ù»ö̳½ê¡¦ÄÂÂߥª¥Õ¥£¥¹Êª·ï°ìÍ÷

Âߤ·»ö̳½ê¤ò·ÇºÜ½ç¤Ëɽ¼¨¤·¤Æ¤¤¤Þ¤¹¡£

µ¤¤Ë¤Ê¤ëʪ·ï¤¬¤¢¤ë¾ì¹ç¤Ï¥Ü¥¿¥ó¤ò²¡¤·¤Æ¡¢Êª·ï¤ò¥¹¥È¥Ã¥¯¤¹¤ë»ö¤¬²Äǽ¤Ç¤¹¡ª
ËÜ¥µ¥¤¥È¾åÉô¤Î¡Ö¤ªµ¤¤ËÆþ¤ê¥ê¥¹¥È¡×¤è¤ê¥¹¥È¥Ã¥¯¤·¤¿Êª·ï¤¬¤´³Îǧ失¤Þ¤¹¡ª
¤Þ¤¿¡¢Êª·ï¤Î°ì³ç¤ªÌ䤤¹ç¤»¤â¤Ç¤­¤Þ¤¹¤Î¤Ç¡¢ÂçÊÑÊØÍø¤Ç¤¹¡ª¤¼¤Ò¡¢¤´³èÍѲ¼¤µ¤¤¡ª

RIVERVIEW OFFICE @..

-Ëü±ß ¡Ê¶¦¡§-¡Ë 10ÄÚ ¡ÊÀì¡§33.09㎡¡Ë Âçºå»ÔÃæ±û¶è ËÌÉÍ1
Âçºå¥á¥È¥íºæ¶ÚÀþ
¡ÚËÌÉͱءÛÅÌÊâ1ʬ
¾ÜºÙ¤ò¸«¤ë


¥¹¥Þ¥Û¤Ç´Êñ¡ªÂçºå¤ÎŹÊÞ¡¦¥Æ¥Ê¥ó¥Èʪ·ïõ¤·¡ª ŹÊÞʪ·ï¤òÂߤ¹¤Î¤âÇä¤ë¤Î¤â¤Þ¤º¤Ï̵ÎÁººÄ꤫¤é¡ª

// ¥ª¥Õ¥£¥¹¡¦»ö̳½ê¤Î¤ªÌòΩ¤Á

Copyright 2024 WORKS-SPACE-COM. ALL Rights Reserved.
Âçºå¤ÎÂß»ö̳½ê¡¦SOHO¡¦¥ª¥Õ¥£¥¹¥µ¥¤¥È ¥Ú¡¼¥¸¥È¥Ã¥×¤Ø