こちらでご覧頂ける物件は現在、募集は終了しております。あらかじめご了承ください。
あくまでも、物件探しの参考までにご覧頂ける様、テキスト等は省いて表示しております。似た条件の物件をお探しの場合は、ご紹介させて頂きますので、お気軽にお問い合せください。
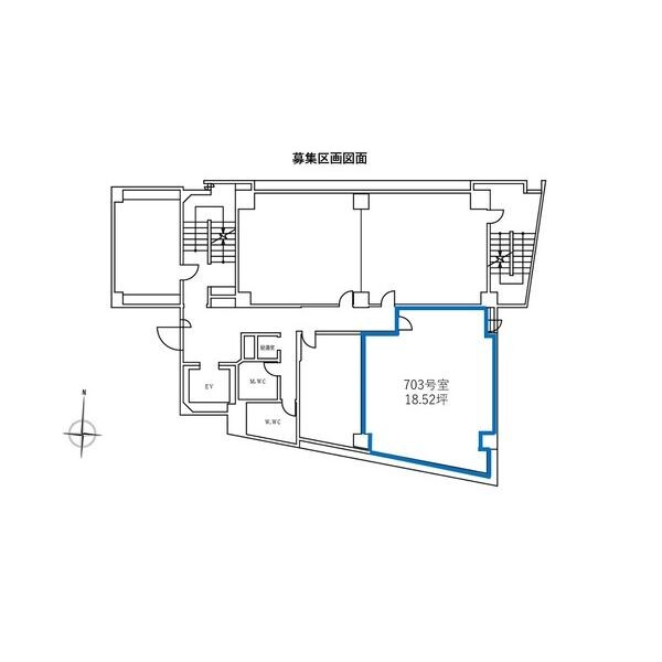
若杉大阪駅前ビル 詳細
この物件情報は【】に作成されたものです。






こちらのお部屋情報は投稿時の募集条件です。
現在、募集は行っておりません。
また、再度募集がされた場合には条件が変動する場合がございます。あくまでも参考までにご覧ください。
| 所在階数 | 7階 | 権利金 | |
|---|---|---|---|
| 備考 | |||
| 所在地 | googleマップでみる |
|---|---|
| 交通 | Osaka Metro四つ橋線 「西梅田」徒歩 2分 |
| 物件構造 | SRC | 物件階層 | 19階建 |
|---|---|---|---|
| 物件種別 | 事務所 | 完成年月 | 1982/01 築43年 |
| 物件設備 | 契約形態(定期借家)、トイレ共同、エアコン、インターネット対応(光ファイバー)、防犯カメラ、照明器具付き、礼金無し、24時間利用可、OAフロア、電気有、個室空調 | ||
この物件は現在、募集は行っておりません。
似た条件でお探しの場合、担当店舗へお電話いただくか、以下の「希望条件リクエスト」よりメールでリクエスト頂けましたら、条件に合った物件をご紹介させて頂きます。
お電話の際は、サイト名と記事番号をお伝えいただくとスムーズです。
| 物件番号 | T38518 |
|---|---|
| サイト名 | ワークスペース |
似た物件を探したい、最新の物件情報を知りたい、希望の物件条件で見つけて欲しい、などお気軽にお問い合わせ下さい。